Nuovo DUPLEX con TERRAZZO

€416.000,00

Descrizione

Rif. Q23 – Cantu’: Centralissimo
In esclusiva, all’ interno della “RESIDENZA MINERVA” in fase di costruzione, composta da sole quattro unità abitative, proponiamo moderno ed elegante Trilocale di ampia metratura, con possibilità della terza camera, situato in una zona centrale privata e non trafficata.

La soluzione è caratterizzata da un design moderno, da finiture di alta qualità. e si trova in una zona residenziale tranquilla a 500 m dal centro storico.
Accogliente e di dimensioni generose, l’appartamento dispone di ampie finestre che regalano un’atmosfera luminosa ed ariosa in tutti gli ambienti. Gli spazi sono ben distribuiti e ottimizzati per garantire il massimo comfort abitativo.
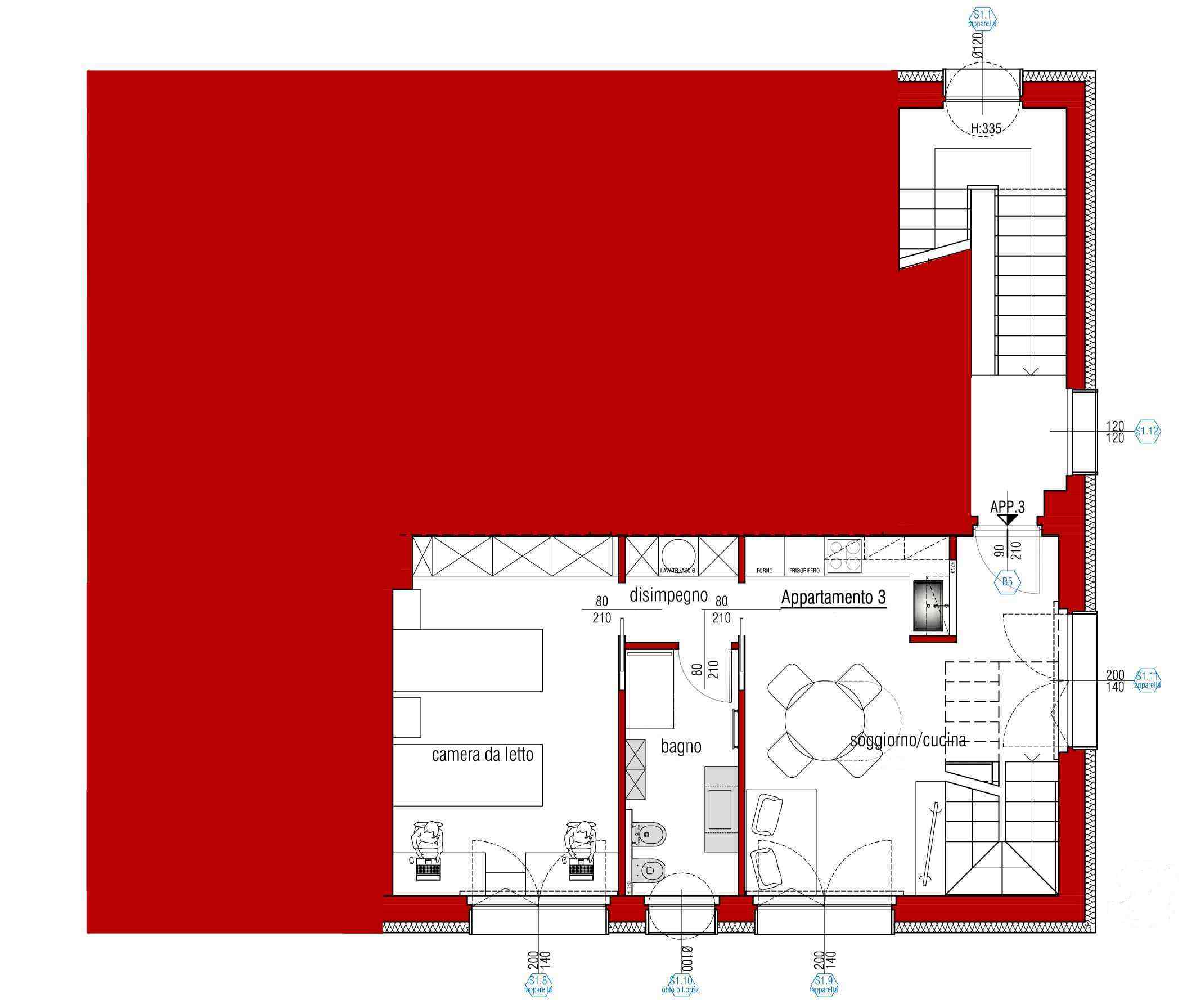
L’ appartamento, posto a piano primo ed ultimo, si sviluppa su due livelli abitativi uniti da comoda scala interna.
Al primo piano la spaziosa zona giorno, ideale per trascorrere piacevoli momenti di relax in compagnia, una camera molto capiente, ben 18 mq, offre lo spazio per una zona smart working oltre ai classici spazi per guardaroba ed arredi, e il bagno, caratterizzato dalle moderne finiture, e consegnato completo anche di box doccia.
Al piano mansardato (H min 2,40) un bel disimpegno arredabile, una cameretta e una enorme camera corredata di uno splendido terrazzo di 30 mq.
N.B. E’ possibile in corso d’opera ricavare un secondo servizio al piano mansarda.
A corredo dell’appartamento un comodo box doppio.

In sintesi, questa introvabile appartamento di nuova costruzione offre ambienti moderni, spaziosi e confortevoli, con finiture di alta qualità e con impianti frutto delle più avanzate tecnologie in materia di efficienza energetica, il tutto in un contesto esclusivo, con tutti i principali servizi a portata di mano e con la zona ZTL comodamente raggiungibile a piedi.

Contattaci per organizzare una visita e scoprire ulteriori dettagli sulle caratteristiche di questa soluzione.

Residenza Minerva si trova a Cantù, in una via privata con solo traffico dei residenti, a pochi metri dal centro storico, a pochi km dalla città di Como, e da tutti i collegamenti per il confine con la Svizzera e Milano.

Panoramica

Dettagli

Caratteristiche

  • Porta blindata
  • Video Citofono
  • Esposizione doppia
  • Cancello elettrico
  • Fibra ottica
  • Impianto TV con parabola satellitare
  • Impianto TV centralizzato
  • Infissi esterni doppio vetro / PVC
  • Impianto solare termico
  • Passo carraio
  • Tapparelle elettriche
  • Aria Condizionata Predisposizione
  • Antifurto Predisposizione

Planimetria

Piano Primo

Contatto Agente

Geom. Giuseppe Costa

Corso Unità d’Italia, 27 - Cantù (CO)
Please enter your Name!
Please enter your Phone!
Please enter your valid Email!
Please enter your Message!

Simulazione Mutuo

Immobili simili

Confrontare